SALT presents
-
The HOSTED HOME
a creative workshop
-
Monday 11TH & TUESDAY 12TH November 2019
-
Learn everything you need to know about turning your home into a thriving creative business - from holiday rentals to location shoots and sell-out events. Lauren Charge from Salt at Shoal Bay and interiors expert Natalie Walton will share their collective wisdom on how your home can earn you serious money and be your best creative project yet.
Join us for a one-of-a-kind learning experience.
Ticket numbers are limited to ensure a personal experience.
WHAT YOU’LL LEARN
How to turn your vision into a marketing masterplan
Smarter ways to work with suppliers
When to spend and where to save
How to brief your trades to get the best results
Strategies to maximise your bookings from the beginning
Why styling is your secret weapon
Essentials for story-telling through photography
5 ways to grow your social media audience without paying for advertising
Harnessing a management team to give you freedom
The inside scoop on how to have your home featured in magazines around the world.
How to maximise your return on investment - Airbnb is just half the story!
INCLUDING
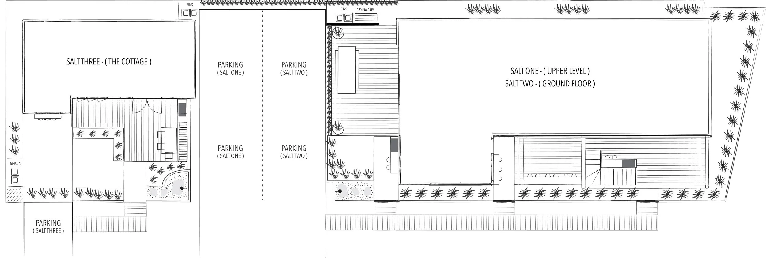
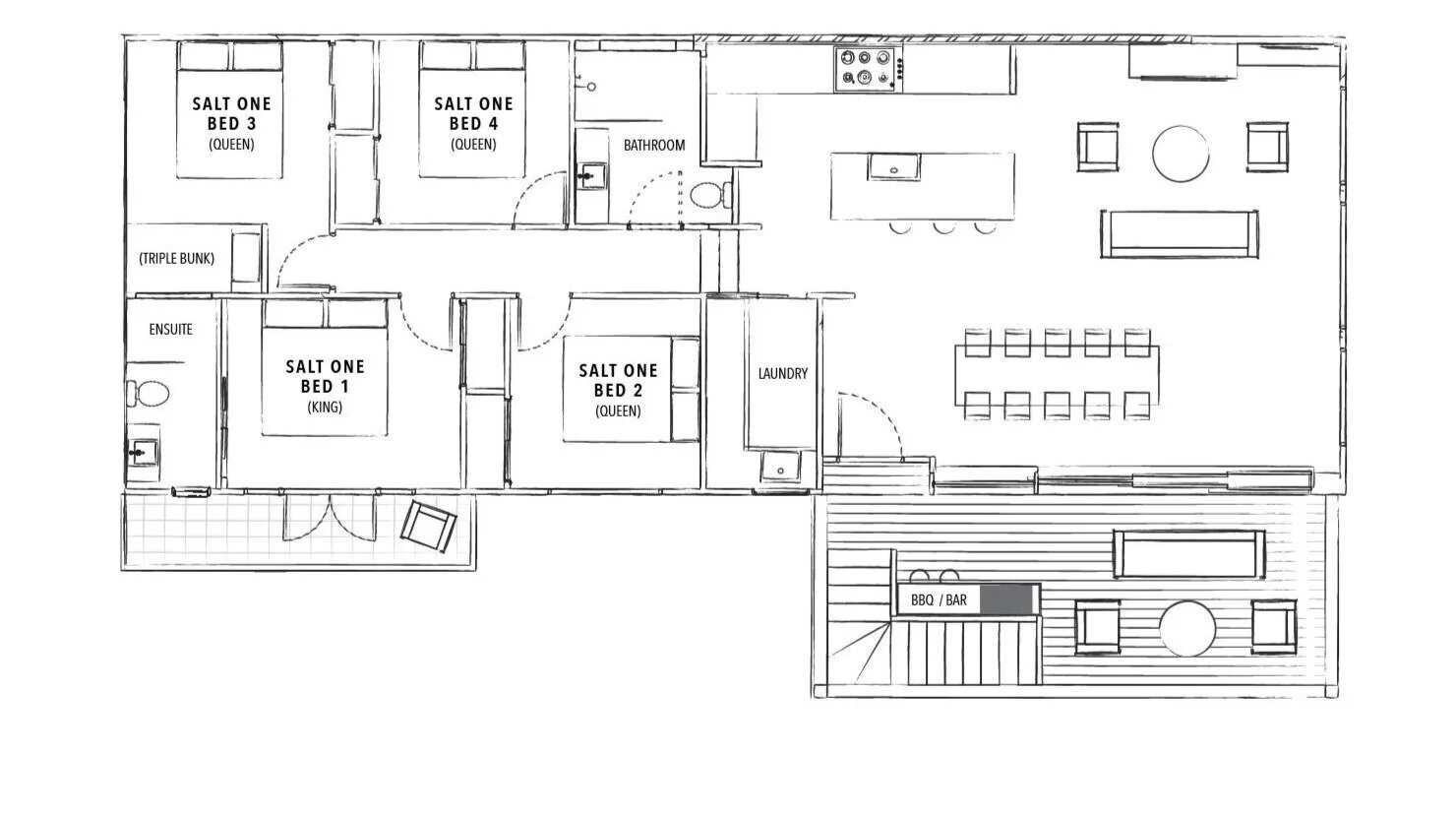
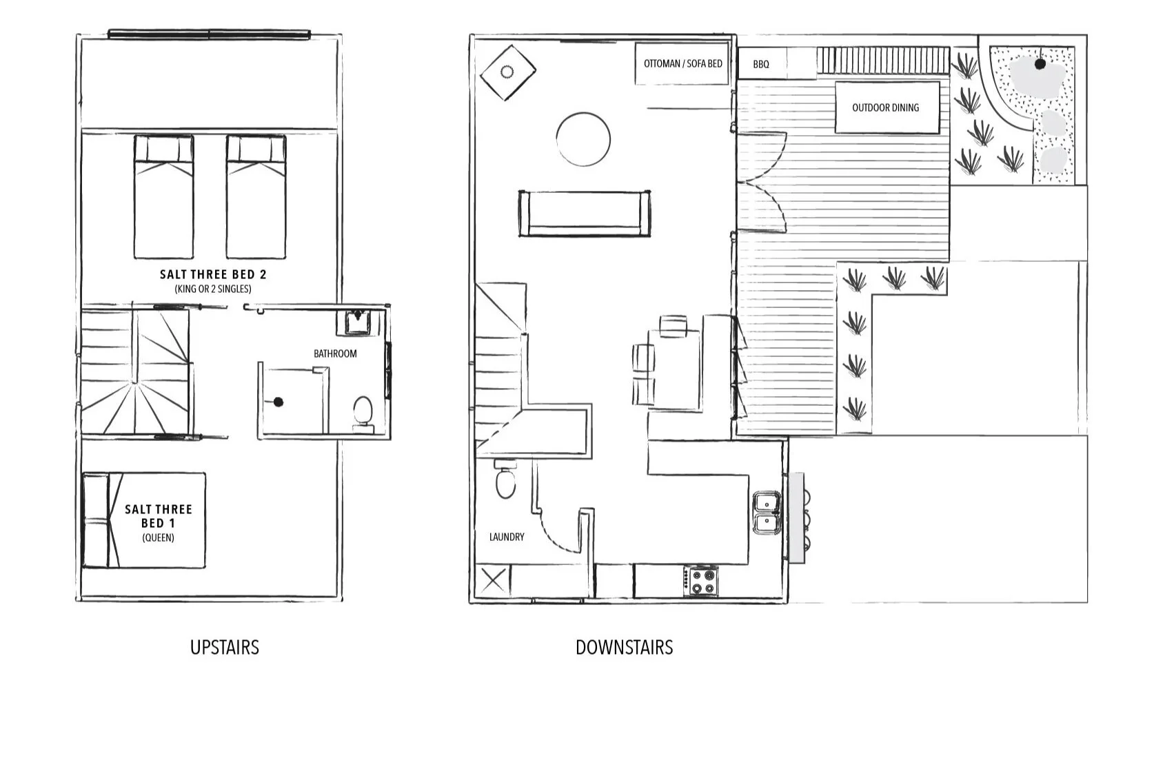
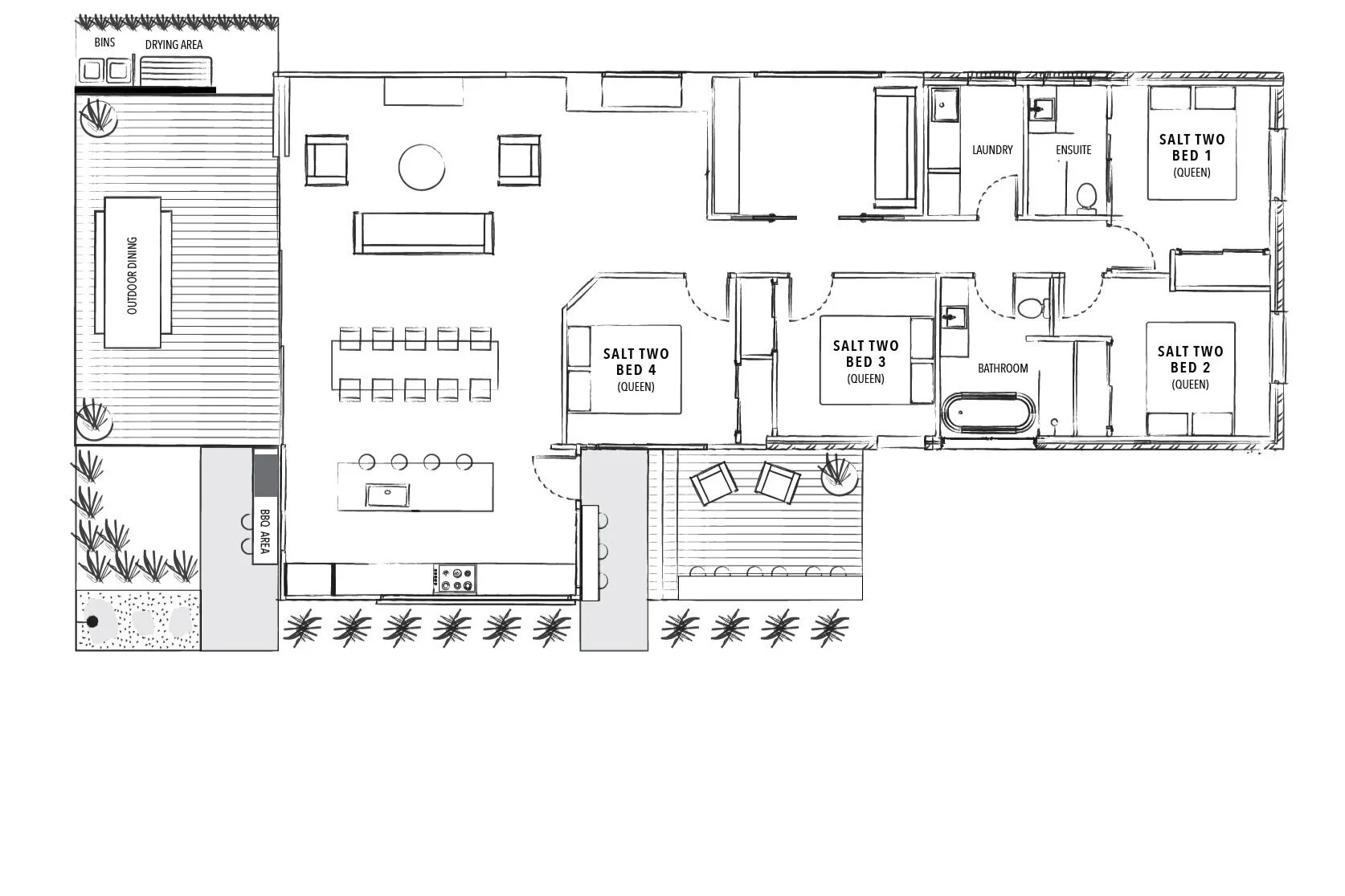
A behind-the-scenes tour of all three spaces at Salt at Shoal Bay
Morning tea or coffee in your complimentary Robert Gordon reusable cup.
A sea-view sit-down lunch both days with local organic wine and refreshments.
Complimentary dinner voucher for Shoal Bay Country Club, should you wish to wind down and recap with your fellow workshoppers Monday evening.
Complimentary breakfast at The Home Interior’s In-House Kitchen Cafe Tuesday morning.
FREE portrait photography session.
Foundations to photography lesson.
Essentials to styling lesson.
Branding, marketing & social media workshop.
Our little black book of suppliers. Your shop-the-look reference guide for all three of Salt’s spaces.
Course notes, worksheets and checklists.
Access to our exclusive Facebook community where you can share inspiration and network with fellow workshoppers.
And much more!
ITINERARY
Over two days Lauren Charge & Natalie Walton will share all the intricate details of designing, renovating, styling, marketing and unleashing the full potential of your home. With special guest Teresa Brincat, the photographer behind the beautifully captured images of Salt at Shoal Bay.
DAY ONE
MONDAY 11TH NOVEMBER
9AM- 5PM
Salt Tour - The workshop starts with a meet & greet. After a hot tea or coffee, receive your goodie bags while you chat and meet your fellow workshoppers, get to know everyone followed by an exclusive guided behind-the-scenes house tour of Salt and all three spaces.
Finding your Why - We’ll help you find your Why and gain a clear idea of your objectives and what you want to create. How to build a road map that works for you and your life.
Creating your vision board - Where many people can go wrong. Creating a stand-out project begins with distilling your vision based upon your “Why”. We’ll share tools to keep you focussed and show you how the vision board for Salt became the foundation for the success it enjoys today.
Sourcing suppliers - How to balance budget and aesthetics. Plus, clever tips and tricks. We’ll also share our little black book of suppliers with you.
Styling - How to become a visual storyteller. Learn the foundations of interior styling and the essential ingredients to creating viral-quality images, and experiences! All you need to know about editing and layering, scale and proportion, and how to see with a stylist’s eye.
Photography - Learn the essential elements of creating beautiful imagery. We will also share simple ways to capture the story and soul of your home and our best tips for sourcing beautiful budget-friendly photography. Plus, receive a complimentary portrait photography session from Teresa Brincat the photographer behind Salt at Shoal Bay’s viral imagery.
DAY TWO
TUESDAY 12TH NOVEMBER
9AM- 5PM
Branding + Marketing - We’ll help you understand the basics for building a successful brand. Tools and resources to save you time and money on graphic designers and the best way to build a basic website in a day. How to create content that will build your business and the essentials for effective mailing lists. Plus, we’ll share tools that will help you market your property across all media to get more exposure.
Management + Maintenance - How to run a successful project from the back-end. What you need to prioritise, and what can wait. Resources to ensure a successful project. How to build in buffers and strategies against inevitable issues that can arise. Common problems and how to turn them to your advantage. Plus, what to outsource, and what to keep in-house.
Social Media - Everything you need to know about social media, magazines and more. What and when to post. How to build an online community. The art of collaboration. Partnering with brands. Plus, why Pinterest and mailing lists are key drivers of sales and growth. How to gain followers through authentic storytelling and finding your audience.
Brainstorming Session - Open Session to workshop some of your own projects and ideas. Together, we will formulate your own step-by-step action plan on what processes you can implement into your business right now to begin making big changes.
THE LOCATION
Salt at Shoal Bay, a modern beachside property nestled in the beautiful coastal region of Port Stephens the just 2.5 hours north of Sydney, has grown a social media audience of over 45,000 followers since opening its doors in March 2018. It launched to a staggering 53% occupancy in the first month, all on the back of social media marketing. Salt at Shoal Bay one year later reached 93% occupancy for the same month - an off-peak period. Now consistently heavily booked with enquiries for bookings 2 years in advance. We look forward to sharing the secrets to a successful hosted home.
SHARING
knowledge
“An investment in knowledge always pays the best interest.”
- Benjamin Franklin
This workshop provides the opportunity to learn in an intimate setting from our select team with invaluable industry knowledge and experience. You will also be able to connect with other attendees who are working on their own projects, who will have their own set of contacts and experiences. This is an opportunity to meet like-minded people and harness the power of collective knowledge.
-
Lauren Charge
Owner and designer of Salt at Shoal Bay, Lauren’s most recent project after designing, building and renovating 4 homes. With over 15 years experience in the design and advertising industry, she has enjoyed a successful career working at top advertising agency M&C Saatchi and leading design group Idea Works in Sydney with major clients including Westfield, Big W, Hyundai and more. She created Salt at Shoal Bay after returning to Newcastle to work at one of the region’s leading advertising agencies Out of the Square Media with clients including Perisher Ski Resort, Camera House and Hunter Tourism. Lauren is about to embark on a fifth renovation, putting the ideas from this workshop into action once again.
-
Natalie Walton
Natalie Walton is a stylist, interior consultant and founder of Imprint House. She has worked for more than 10 years in the interiors industry, and was deputy editor at Real Living magazine for five years. She regularly contributes to leading Australian magazines, including Country Style, Inside Out, House & Garden, Home Beautiful as well as Marie Claire and Harper’s Bazaar and is the author of the best-selling book This is Home: The Art of Simple Living (Hardie Grant). Most recently she has launched a series of Online Styling Masterclasses, with hundreds of graduates from around the world.
-
Teresa Brincat
Teresa Brincat, of Muse Photography, the photographer behind the images now running viral on social media. This soulful photography has been one of the key factors behind the success of Salt at Shoal Bay. Teresa will share key tips on photography, and how story-telling is the key to image-making.
